INDELING INTERIEUR | MEUBELONTWERP | HILVERSUM
Lopend project. Een interieurontwerp voor de living van een nieuwbouwappartement.
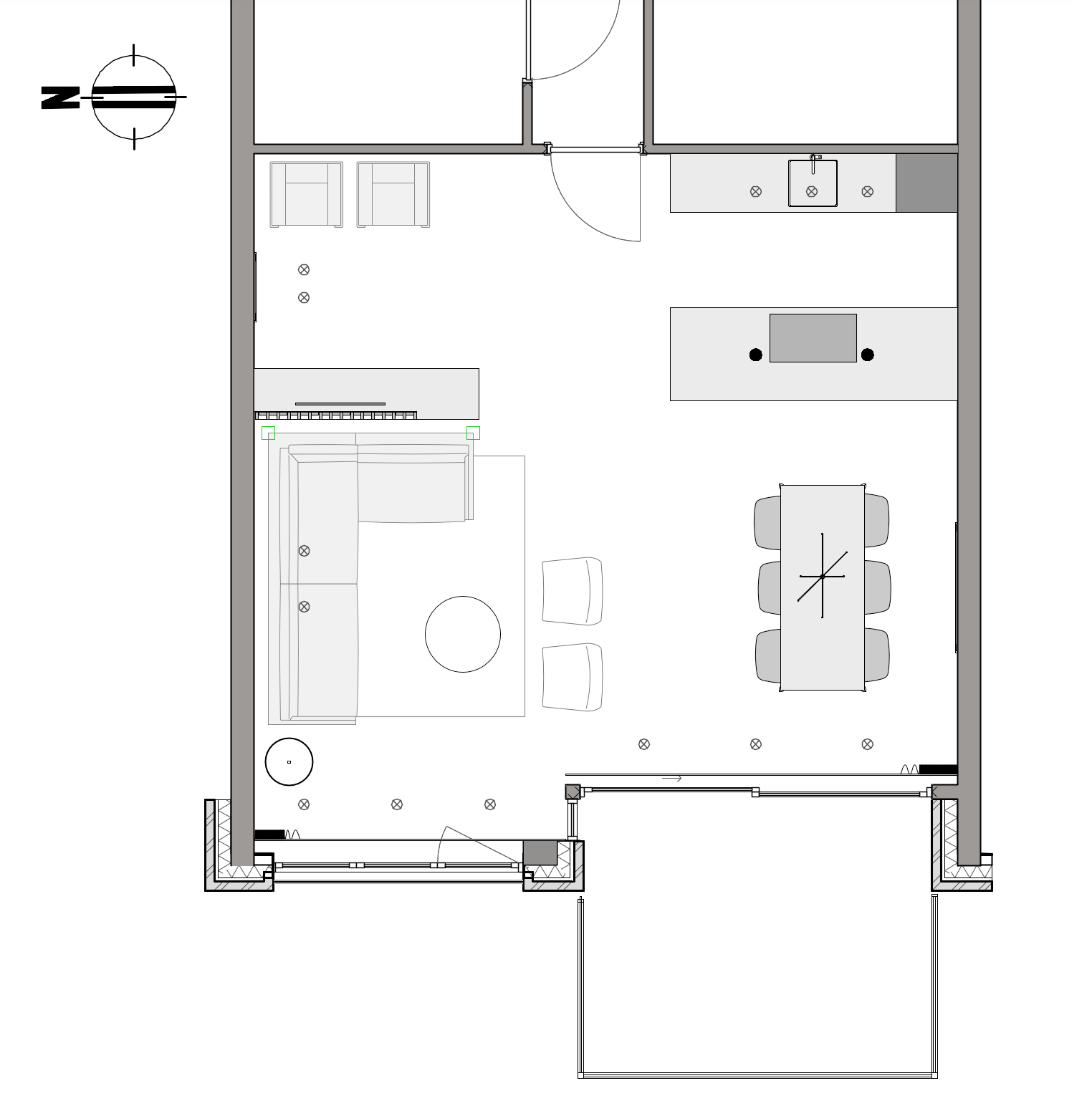
Het is gericht op het creëren van een functionele en harmonieuze leefruimte. De klant worstelde met de indeling en kleurstellingen van de woonruimte met zithoek, keuken en eethoek.
Als je van een ruime woning naar een klein(er) appartement verhuist is het zoeken naar een fijne, ruimtelijke indeling en lastig om te bepalen welke meubels het beste mee kunnen. Een uitdaging die wij heel leuk vinden om uit te zoeken en bij te helpen.
Het ontwerp omvat een gedetailleerd indelingsvoorstel, suggesties voor meubels, materialen en kleuren, evenals een verlichtingsplan. Een op maat gemaakt meubelontwerp voor een roomdivider tussen de zithoek en een apart tv-hoekje zorgt er voor dat de zithoek een fijne oriëntatie richting buiten heeft.
Dit ontwerp voldoet aan de functionele behoeften van de klant en draagt bij aan een comfortabel interieur dat past bij hun levensstijl en persoonlijke voorkeuren.
Opdrachtgever:
Particulier
Locatie:
Hilversum
Ontwerp:
Indeling woonkamer nieuwbouw appartement met voorstel meubels, materialen, kleuren en verlichtingsplan.
Maatwerk meubelontwerp voor roomdivider.
Fase:
Ontwerp 2024










