INDELING INTERIEUR | SCHETSONTWERP | HAARLEM
Lopend project.
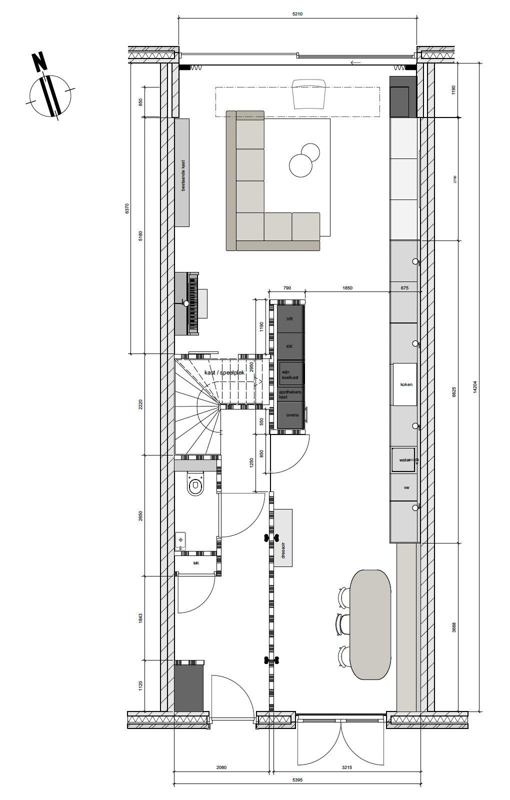
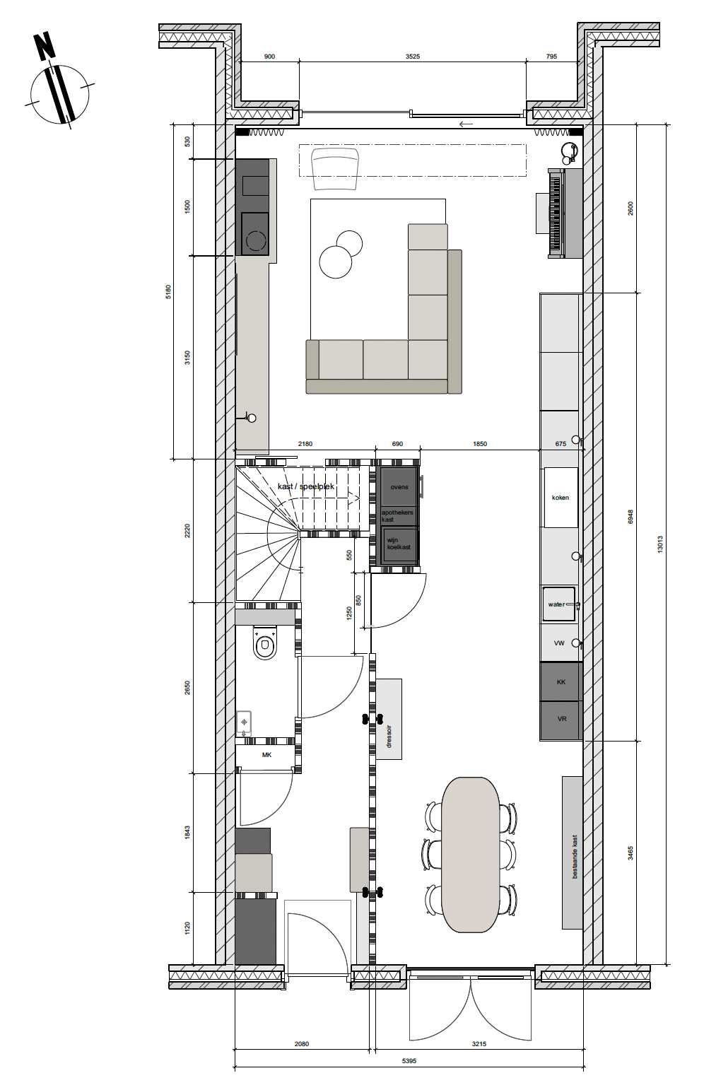
Het doel in dit project is het optimaliseren van de indeling van begane grond van een nieuwbouwwoning.
Onze focus ligt op het onderzoek naar een eventuele uitbouw en het optimaal benutten en maximaliseren van de daglichttoetreding. Om een ruimte te creëren waar het prettig vertoeven is. Een levendige ruimte met een royale eettafel, keuken en fijne zithoek met een haard, speelplek voor de kinderen en plek voor de piano.
Na een zorgvuldige analyse van de huidige indeling hebben we twee opties ontwikkeld: één met een uitbouw en één zonder.
Opdrachtgever:
Particulier
Locatie:
Haarlem
Ontwerp:
Indeling interieur begane grond woning. Onderzoek naar mogelijke uitbouw en meer daglicht.
Fase:
Schetsontwerp: 2024









